Gemütliche DHH mit 509 m² Grundstück, sofort zu Ihrer Verfügung!
Eckdaten
- Art Doppelhaushälfte
- Lage 86156 Augsburg
- Kaufpreis 369.000,00 €
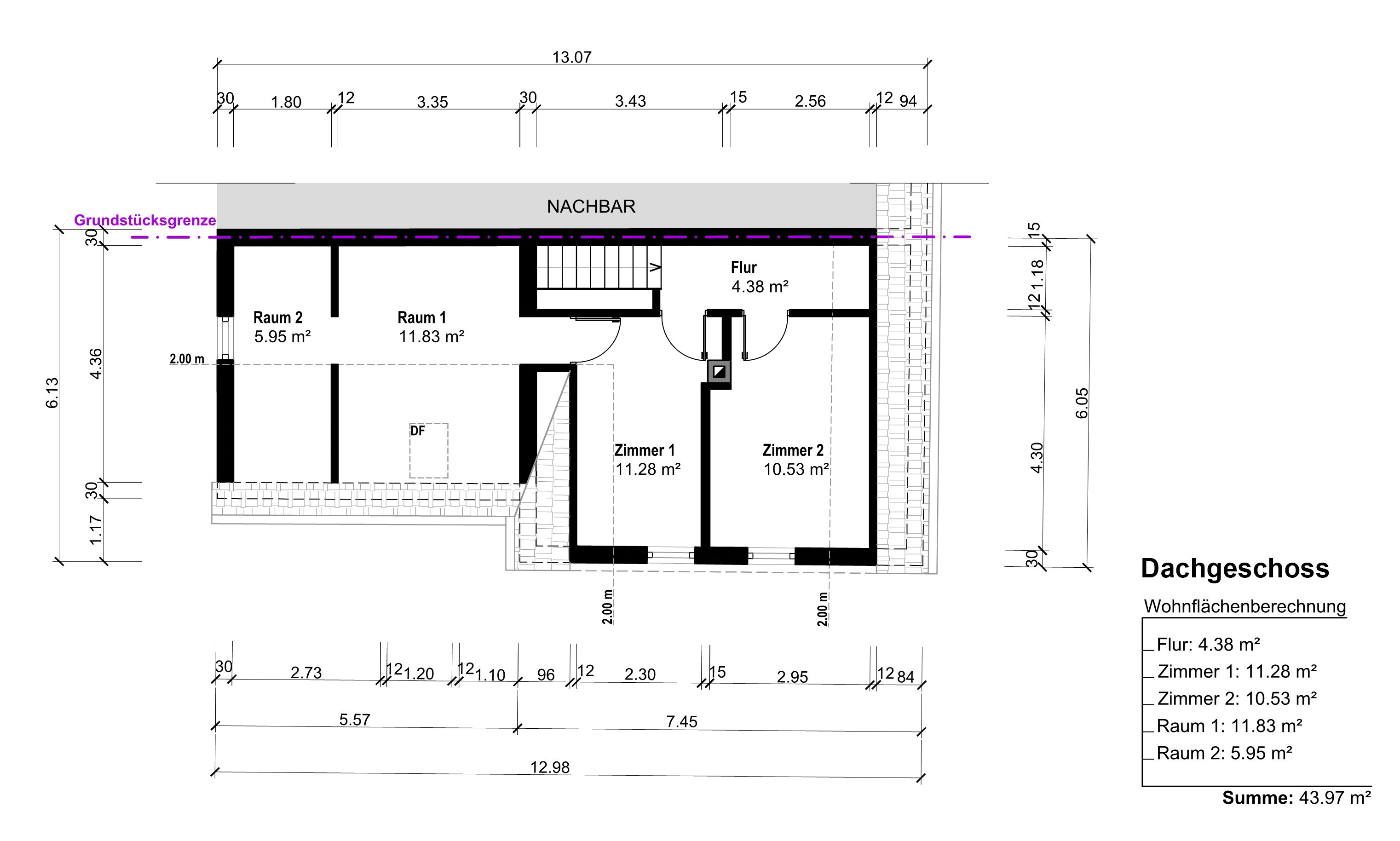
- Wohnfläche ca. 105 m²
- Grundstück ca. 509 m²
- Zimmer 6
- Etagenzahl 2
- Einbauküche ja
- Gäste-WC ja
- Stellplatztyp Garage
- Garagenanzahl 1
- Bezugstermin sofort frei
- Fahrzeit Hauptbahnhof 15 min
- Fahrzeit nächste Autobahnauffahrt 5 min
- Fahrzeit nächster Flughafen 25 min
- Bodenbelag Fliesen Parkett
- Ausstattung des Bades Badewanne Dusche Fenster
- Immobilien-ID 8359
- Provision 4,76 % inkl. MwSt.
Immobilie
Dieses große, über 500 m² messende Grundstück mit netter, kleiner Doppelhaushälfte bietet neuen Eigentümern
verschiedene Möglichkeiten.
Ursprünglich im Jahre 1937erbaut und 1951 um einen Anbau erweitert, versprüht das alte
Siedlerhaus mit für heutige Verhältnisse unkonventionellen Eigenschaften einen ganz eigenen Charme.
Mit einem Badezimmer im Untergeschoss und einem kleinen, als Einliegerwohnung gedachten Bereich und Einzelöfen lässt sich für Liebhaber ein hübsches Nest herrichten.
Ansonsten lässt sich mit Abriss und Neubau im Stil der alten Siedlerhäuser eine neue Doppelhaushälfte für eine Familie oder sogar eine Mehrfamilien-Doppelhaushälfte mit drei bis vier kleineren Einheiten errichten!
Hier bei diesem Objekt ist ein Mietkauf möglich.
Die Anzahlung des Mietkaufes beläuft sich auf mindestens 50 % der Kaufpreissumme und für den restlichen Betrag wird Mietkauf gewährt!
Lage
Das freistehende 1-2 Familienhaus liegt am nördlichen Stadtrand des Augsburger Stadteils Bärenkeller, in einer Sackgasse in einer reinen Wohnsiedlung.
Zu Fuß kommen Sie zu den umliegenden Feldern, zum Joggen oder für ausgedehnte Spaziergänge, z.B. zum Mount
Bärenkeller (Eselberg) oder zur Baumschule Schlegel.
Zur Bushaltestelle (Linie 21) sind es 5 Gehminuten.
Der Autobahnanschluss Neusäß zur A8 ist keine 3 Autominuten entfernt.
Zur Augsburger Uniklinik sind es 5km.
Mit dem Fahrrad geht es schnell zur Schmutter oder in die Westliche Wälder.
Infrastruktur (im Umkreis von 5 km): Apotheke, Lebensmittel-Discount, Allgemeinmediziner, Grundschule, Gymnasium, Hauptschule, Kindergarten und Realschule.
Ausstattung
Sonstiges
Sollten wir Ihr Interesse geweckt haben und Sie haben Fragen oder möchten einen Besichtigungstermin vereinbaren, erreichen Sie uns unter den folgenden Kontaktdaten.
Wir freuen uns von Ihnen zu hören!
*************** Wichtig ***************
Für die Zusendung des Exposés / weitere Informationen zum Objekt sowie einen Terminwunsch bitte Ihre Daten im Kontaktformular angeben – kompletter Name – komplette Anschrift – E-Mail Adresse – Telefon – und /oder Mobilnummer
*********** Danke für Ihr Verständnis ***********
Um eine zeitnahe Bearbeitung Ihrer Anfrage zu gewährleisten, bitten wir Sie den Erstkontakt ausschließlich über das Email-Kontaktformular zu gestalten.
Ihre Anfrage wird in der Regel innerhalb von 48 Stunden bearbeitet. Bitte prüfen Sie auch gegebenenfalls Ihren Spamordner im E-Mail Postfach
Herzlichen Dank für Ihre Anfrage.
Wir werden diese so schnell wie möglich bearbeiten.



