Top Wohnlage, Neu-Ulm, Sofort Frei!
Eckdaten
- Art Einfamilienhaus mit Einliegerwohnung
- Lage 89231 Neu-Ulm
- Preis auf Anfrage ja
- Wohnfläche ca. 250 m²
- Grundstück ca. 988 m²
- Zimmer 7
- Kellerfläche ca. 55 m²
- Etagenzahl 2
- Heizungsart Öl-Heizung
- Gäste-WC ja
- Stellplatztyp Garage Aussenstellplatz
- Stellplatzanzahl 2
- Garagenanzahl 1
- Bezugstermin sofort bezugsbereit
- Fahrzeit Hauptbahnhof 5 min
- Fahrzeit nächste Autobahnauffahrt 15 min
- Fahrzeit nächster Flughafen 57 min
- Bodenbelag Fliesen Parkett
- Ausstattung des Bades Badewanne Dusche Fenster
- Zustand Gepflegt
- Immobilien-ID 8373
- Provision inkl. MWST ja
- Provision 4,76
Immobilie
Begehung: https://youtube.com/watch?v=j-S0_wvCo-U&si=qzRI030T6uWYVAEy
Das Einfamilienhaus mit Einliegerwohnung besticht durch eine großzügige Gesamtwohnfläche von 246,82 m² und bietet viel Platz für eine Familie oder auch für individuelle Nutzungen. Es ist in Massivbauweise errichtet und befindet sich in einem gepflegten Zustand, was für eine solide Grundlage sorgt. Das Haus ist durch seine Flachdachkonstruktion modern und funktional, während die drei Garagenstellplätze ausreichend Platz für Autos oder zusätzliche Lagermöglichkeiten bieten. Zusätzlich verfügt das Anwesen über drei Terrassen, die im Sommer zum Entspannen und Verweilen einladen.
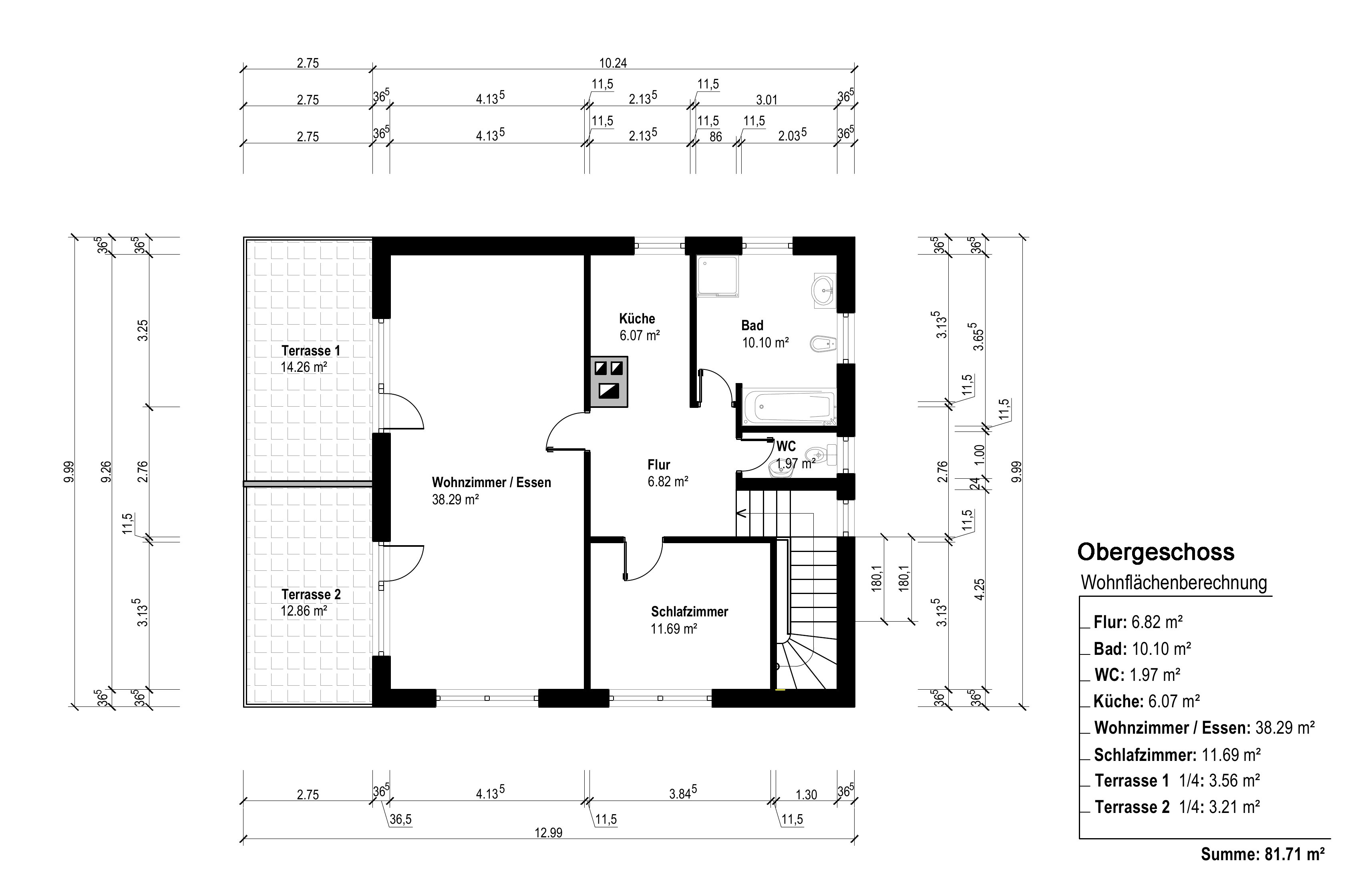
Im Inneren des Hauses erwarten Sie insgesamt sieben Zimmer, verteilt auf zwei Etagen. Das Obergeschoss bietet mit 81,71 m² eine zusätzliche Fläche, die flexibel genutzt werden kann, zum Beispiel für ein Homeoffice, ein Gästezimmer oder eine Galerie.
Im Erdgeschoss befinden sich drei Schlafzimmer und drei Badezimmer, die für ausreichend Privatsphäre und Komfort sorgen. Besonders erwähnenswert ist die Einliegerwohnung im Untergeschoss, die mit einer Wohnfläche von 33,94 m² ideal für eine unabhängige Nutzung ist – sei es für ein Familienmitglied, als Büro oder für eine Vermietung. Die Nutzfläche des Untergeschosses beträgt insgesamt 54,95 m², was Platz für zusätzliche Lagerflächen oder weitere Nutzungsmöglichkeiten bietet.
Das Haus wird mit einer im Jahr 2016 eingebauten Öl-Heizung beheizt und weist eine Energieeffizienzklasse H auf, was in Bezug auf den Energieverbrauch gewisse Potenziale zur Optimierung bietet. Die ruhige Lage des Hauses in einer ländlichen Umgebung, verbunden mit einer guten Anbindung an öffentliche Verkehrsmittel, macht das Anwesen besonders attraktiv für all jene, die das Leben in der Natur mit der Nähe zur Stadt verbinden möchten.
Zusammengefasst bietet dieses Einfamilienhaus mit Einliegerwohnung eine perfekte Kombination aus großzügigem Wohnraum, Flexibilität und einer guten Lage – ideal für Familien, die viel Platz und Komfort suchen, aber auch für Interessenten, die eine zusätzliche Einkommensquelle durch die Vermietung der Einliegerwohnung nutzen möchten.
Lage
Das Einfamilienhaus mit Einliegerwohnung befindet sich in einem ruhigen Wohngebiet im Stadtteil Neu-Ulm. Die Wohnlage zeichnet sich durch eine gute Infrastruktur aus, mit Geschäften, Schulen und Parks in unmittelbarer Nähe. Die Nachbarschaft ist geprägt von gepflegten Häusern und viel Grünflächen, was eine angenehme und familienfreundliche Atmosphäre schafft.
Neu-Ulm ist eine lebendige Stadt am Donauufer, die durch ihre Nähe zur Schwesterstadt Ulm und die gute Verkehrsanbindung überzeugt. Mit einer Vielzahl an kulturellen Angeboten, Einkaufsmöglichkeiten und Restaurants bietet Neu-Ulm eine hohe Lebensqualität. Die Stadt ist zudem bekannt für ihre vielfältigen Freizeitaktivitäten, wie Radwege entlang der Donau und nahe gelegene Naherholungsgebiete.
Die Region um Neu-Ulm zeichnet sich durch ihre landschaftliche Vielfalt aus, mit den Alpen im Süden und atemberaubenden Naturparks in der Umgebung. Die Lage nahe der bayrischen Landesgrenze ermöglicht zudem Ausflüge in die malerische Umgebung und zu beliebten Ausflugszielen. Insgesamt ist die Region reich an Geschichte und Kultur, was sie zu einem attraktiven Standort für Immobilienkäufer macht.
Ausstattung
2005 Fenster getauscht im Wintergarten waren vorher Glasbausteine
2000 Wurde das Flachdach neu Eingedeckt und die obere Terrasse gemacht
Sonstiges
Sollten wir Ihr Interesse geweckt haben und Sie haben Fragen oder möchten einen Besichtigungstermin vereinbaren, erreichen Sie uns unter den folgenden Kontaktdaten.
Wir freuen uns von Ihnen zu hören!
*************** Wichtig ***************
Für die Zusendung des Exposés / weitere Informationen zum Objekt sowie einen Terminwunsch bitte Ihre Daten im Kontaktformular angeben – kompletter Name – komplette Anschrift – E-Mail Adresse – Telefon – und /oder Mobilnummer
*********** Danke für Ihr Verständnis ***********
Um eine zeitnahe Bearbeitung Ihrer Anfrage zu gewährleisten, bitten wir Sie den Erstkontakt ausschließlich über das Email-Kontaktformular zu gestalten.
Ihre Anfrage wird in der Regel innerhalb von 48 Stunden bearbeitet. Bitte prüfen Sie auch gegebenenfalls Ihren Spamordner im E-Mail Postfach
Energieausweisangaben
- Enerigeausweistyp Bedarfsausweis
- Energiekennwert 301 KWh(m²*a)
- Energieeffizienzklasse H
- Energie mit Warmwasser ja
- Energieausweis erstellt am 02.12.2024
- Energieausweis gültig bis 01.12.2034
- Heizungsart Öl-Heizung
- Befeuerung / Energieträger Öl
Herzlichen Dank für Ihre Anfrage.
Wir werden diese so schnell wie möglich bearbeiten.




