Mehrgenerationen – DHH mit NG in Randlage, Perfekt für die große Familie!
Eckdaten
- Art Doppelhaushälfte
- Lage 82278 Althegnenberg
- Kaufpreis 669.000,00 €
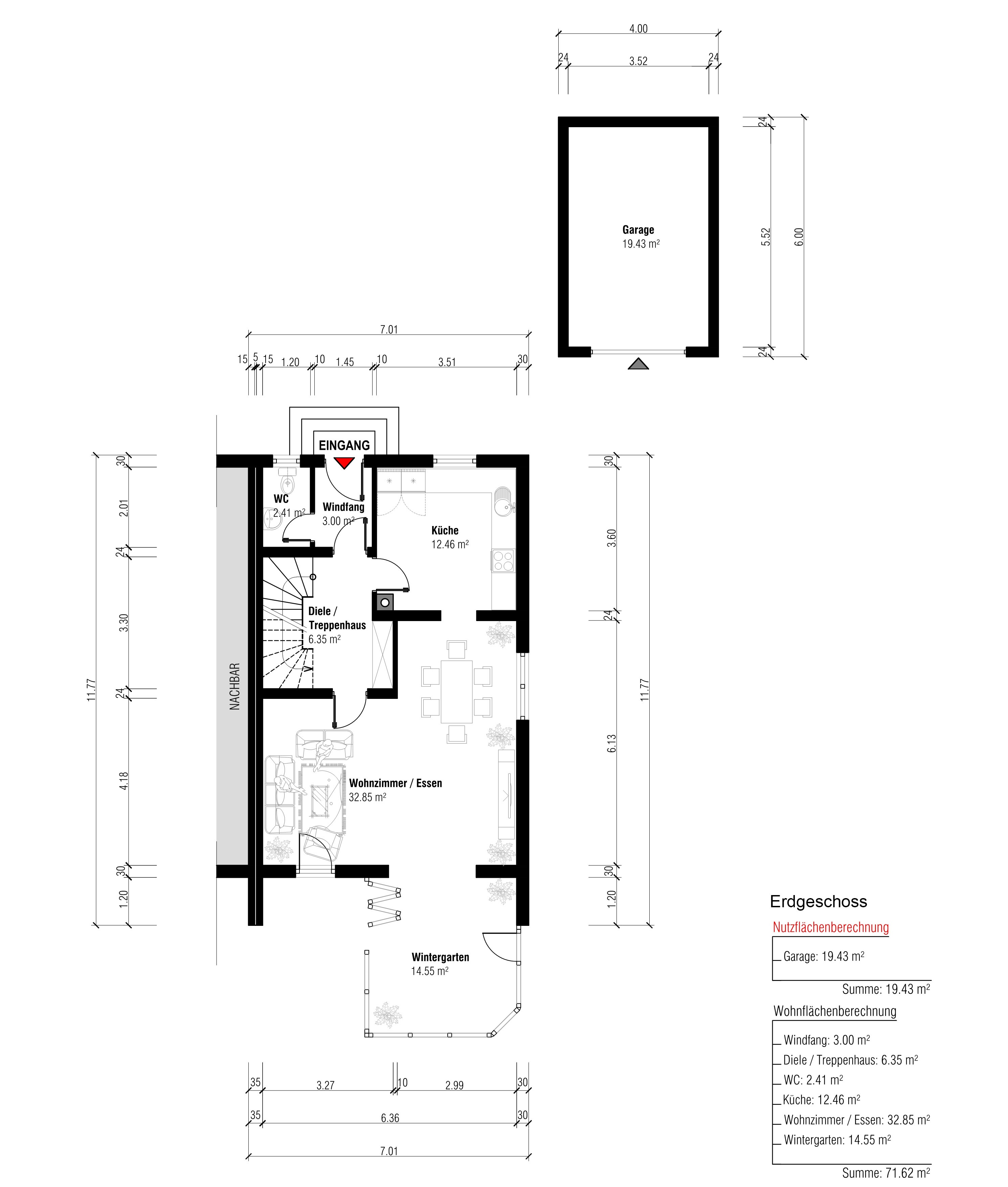
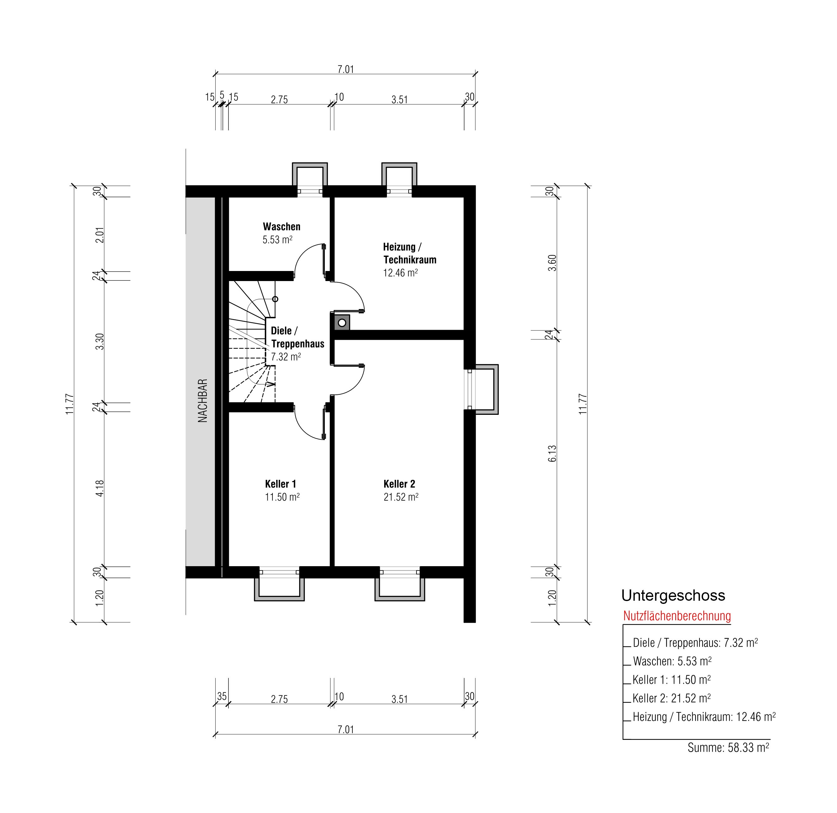
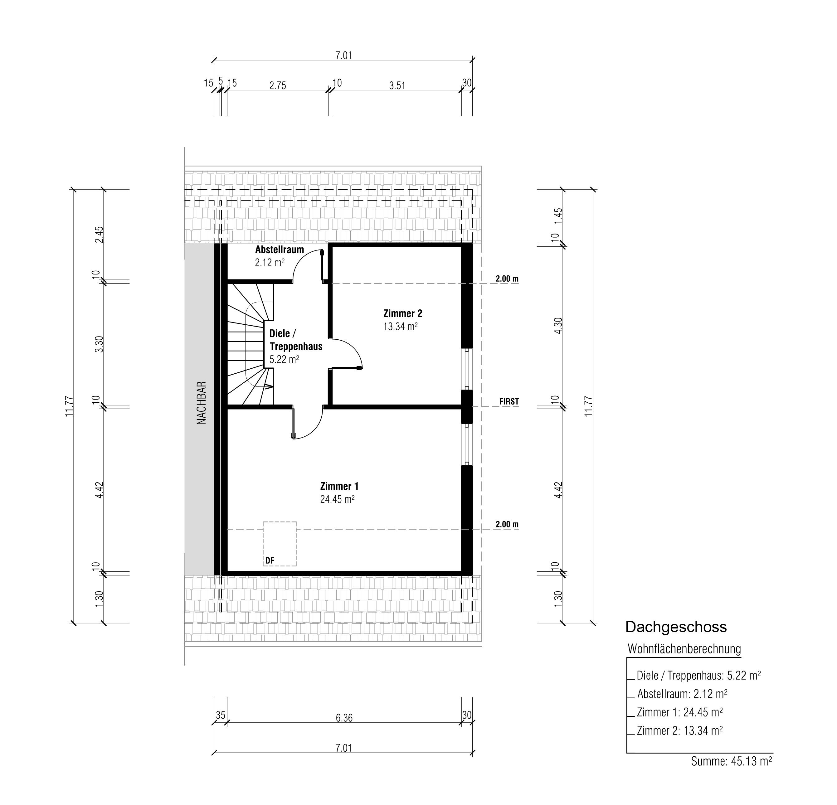
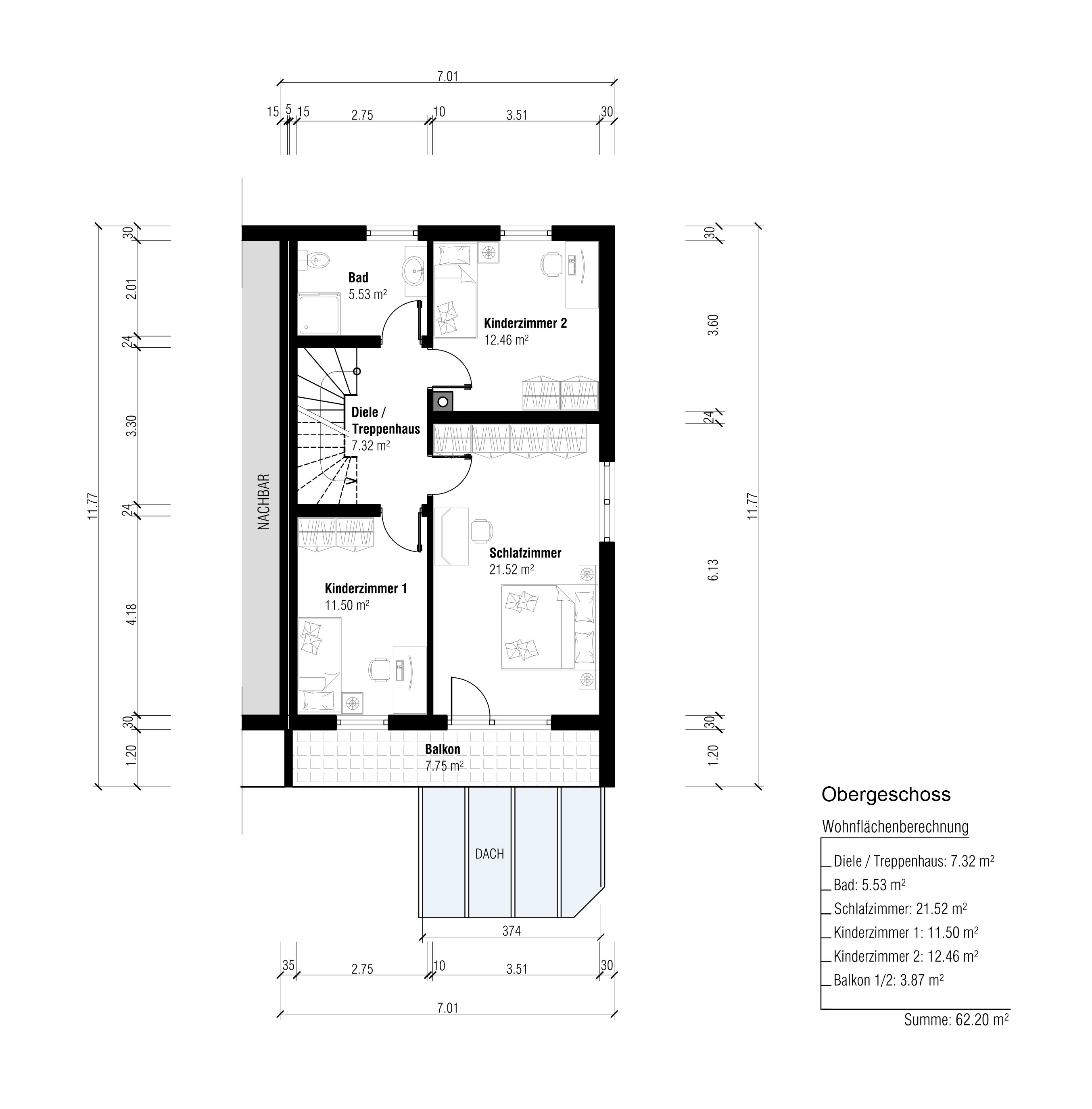
- Wohnfläche ca. 164 m²
- Grundstück ca. 364 m²
- Zimmer 6.5
- Etagenzahl 3
- Heizungsart Zentralheizung
- Einbauküche ja
- Gäste-WC ja
- Anzahl Balkone 1
- Stellplatztyp Aussenstellplatz Garage
- Stellplatzanzahl 1
- Garagenanzahl 1
- Bezugstermin sofort Frei!
- Fahrzeit Hauptbahnhof 4 min
- Fahrzeit nächste Autobahnauffahrt 20 min
- Fahrzeit nächster Flughafen 70 min
- Bodenbelag Laminat Fliesen Teppichboden
- Ausstattung des Bades Badewanne Fenster
- Zustand Modernisiert
- Immobilien-ID 8486
- Provision 3,57 % inkl. MwSt.
Immobilie
Begehung: https://youtube.com/watch?v=tCYCeKmwKcE&si=eNzdBHzp-23UWrY4
Diese gut erhaltene und gepflegte Doppelhaushälfte besticht durch ihre großzügige Wohnfläche von 164 m² auf drei Etagen. Das Satteldach und die Massivbauweise sorgen für eine solide Baukonstruktion. Die Immobilie wurde zuletzt im Jahr 2015 modernisiert und präsentiert sich in einem sehr guten Zustand. Zum Anwesen gehören ein Parkplatz, eine Garage, ein Balkon und eine Terrasse, die zum Entspannen im Freien einladen.
Die Doppelhaushälfte verfügt über insgesamt 5 Schlafzimmer, ein Badezimmer und 1,5 zusätzliche Zimmer, die vielseitig genutzt werden können.
Die Zimmer sind hell und großzügig gestaltet, und man kann mit einem Treppenlift ganz bequem vom Erdgeschoss in das erste Obergeschoss gelangen welches für ein angenehmes Wohngefühl sorgt.
Der Balkon bietet einen malerischen Ausblick über die umliegende Umgebung und lädt zum Verweilen ein.
Das Grundstück umfasst eine Fläche von 364 Quadratmetern und bietet somit ausreichend Platz für Gartenliebhaber oder Familien mit Kindern.
Die ruhige Lage des Hauses, in Verbindung mit der gepflegten Ausstattung und der großzügigen Wohnfläche, macht diese Immobilie zu einem echten Juwel für anspruchsvolle Käufer.
Mit einem Parkplatz und einer voll unterkellerter Garage ist ausreichend Platz für Fahrzeuge vorhanden.
Lage
Die Immobilie befindet sich in ruhiger und familienfreundlicher Randlage von Althegnenberg, einer
beliebten Gemeinde im Landkreis Fürstenfeldbruck.
Die Umgebung ist geprägt von Einfamilien- und Doppelhäusern sowie viel Natur.
Einkaufsmöglichkeiten, Ärzte, Kindergarten und Schulen sind in der näheren Umgebung vorhanden.
Der Bahnhof mit Anschluss an die S-Bahnlinie S3 Richtung München ist in wenigen Minuten
erreichbar – ideal auch für Pendler.
Ausstattung
– Ruhige Randlage in Althegnenberg
– 2006: Neue Fenster (Isolierverglasung, Doppelverglast)
– 2013: Neues Dach inkl. Dachfenster
– 2014: Solaranlage für Warmwasser und Heizungsunterstützung
– Teilweise barrierefrei mit Treppenlift
– Einbauküche vorhanden
– Windfang / Eingangsbereich
– Wintergarten & überdachte Terrasse
– Hobbyraum & zusätzliche Dusche im Keller
– Unterkellerte, übergroße Garage
– Separates Nebengebäude (z. B. Werkstatt, Lager)
– Heizung: (bitte noch ergänzen – z. B. Gas / Öl / Solarunterstützt)
Sonstiges
Ihre Anfrage wird in der Regel innerhalb von 48 Stunden bearbeitet. Bitte prüfen Sie auch gegebenenfalls Ihren Spamordner im E-Mail Postfach. Sollten wir Ihr Interesse geweckt haben und Sie haben Fragen oder möchten einen Besichtigungstermin vereinbaren, erreichen Sie uns unter den folgenden Kontaktdaten.
Wir freuen uns von Ihnen zu hören!
*************** Wichtig ***************
Für die Zusendung des Exposés / weitere Informationen zum Objekt sowie einen Terminwunsch bitte Ihre Daten im Kontaktformular angeben – kompletter Name – komplette Anschrift – E-Mail Adresse – Telefon – und /oder Mobilnummer.
*********** Danke für Ihr Verständnis ***********
Um eine zeitnahe Bearbeitung Ihrer Anfrage zu gewährleisten, bitten wir Sie den Erstkontakt ausschließlich über das Email-Kontaktformular zu gestalten.
Energieausweisangaben
- Enerigeausweistyp Verbrauchsausweis
- Energiekennwert 100 KWh(m²*a)
- Energieeffizienzklasse D
- Energieausweis erstellt am 11.08.2025
- Energieausweis gültig bis 10.08.2035
- Heizungsart Zentralheizung
- Befeuerung / Energieträger Öl
Herzlichen Dank für Ihre Anfrage.
Wir werden diese so schnell wie möglich bearbeiten.




