Einzugsbereites REH, modernisiert in ruhiger Wohnlage von Adelsried! Sofort frei!
Eckdaten
- Art Reiheneckhaus
- Lage 86477 Adelsried
- Kaufpreis 549.000,00 €
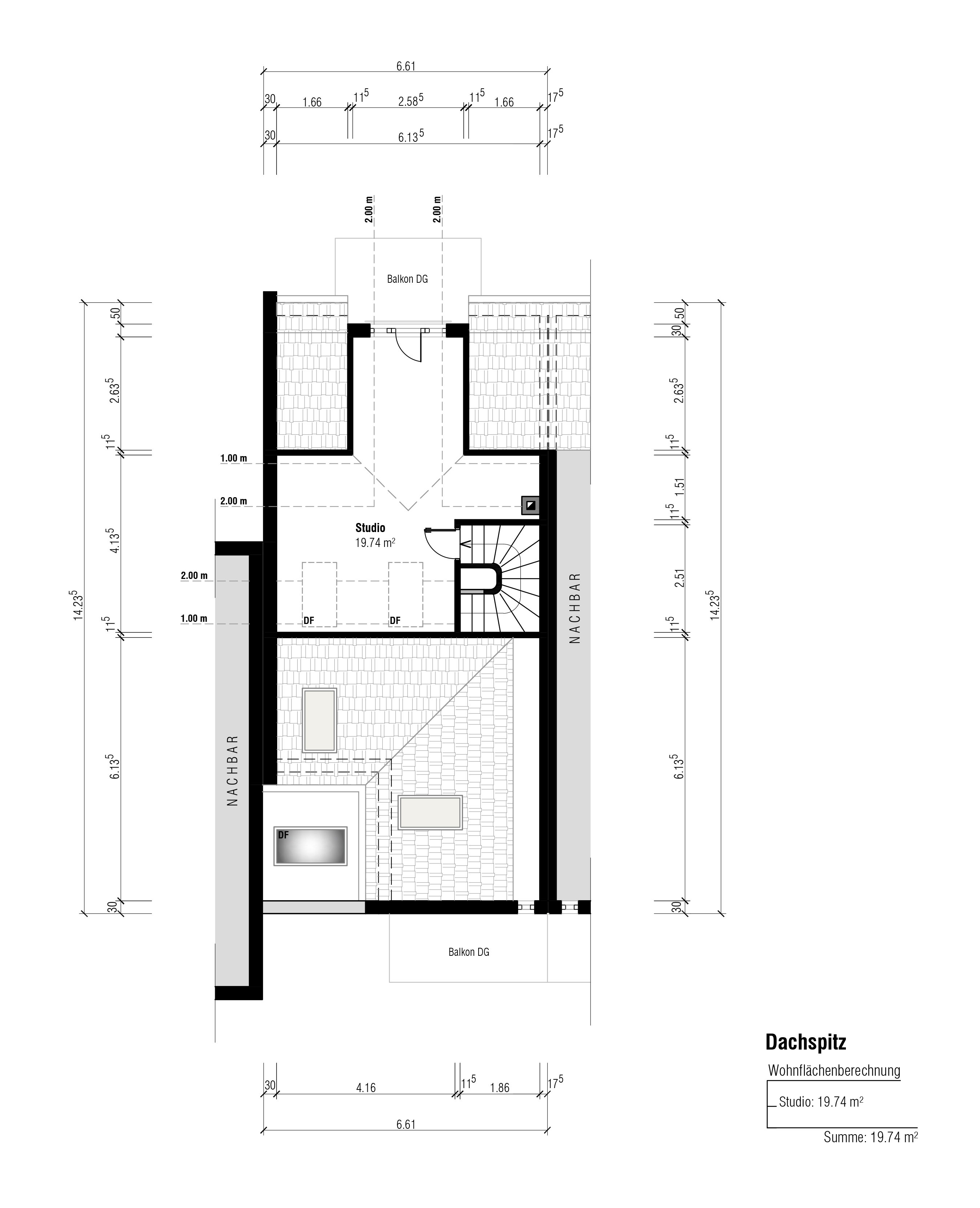
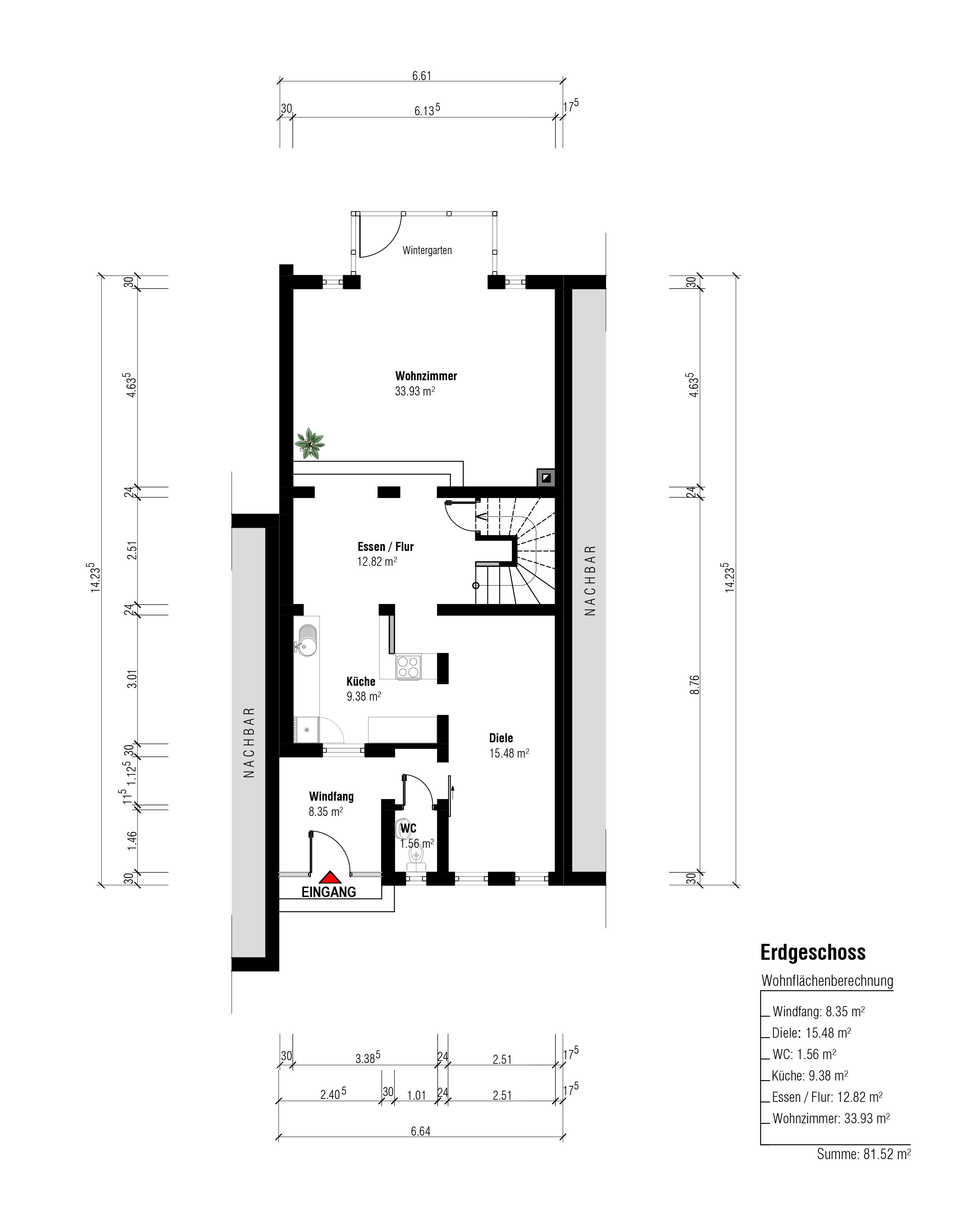
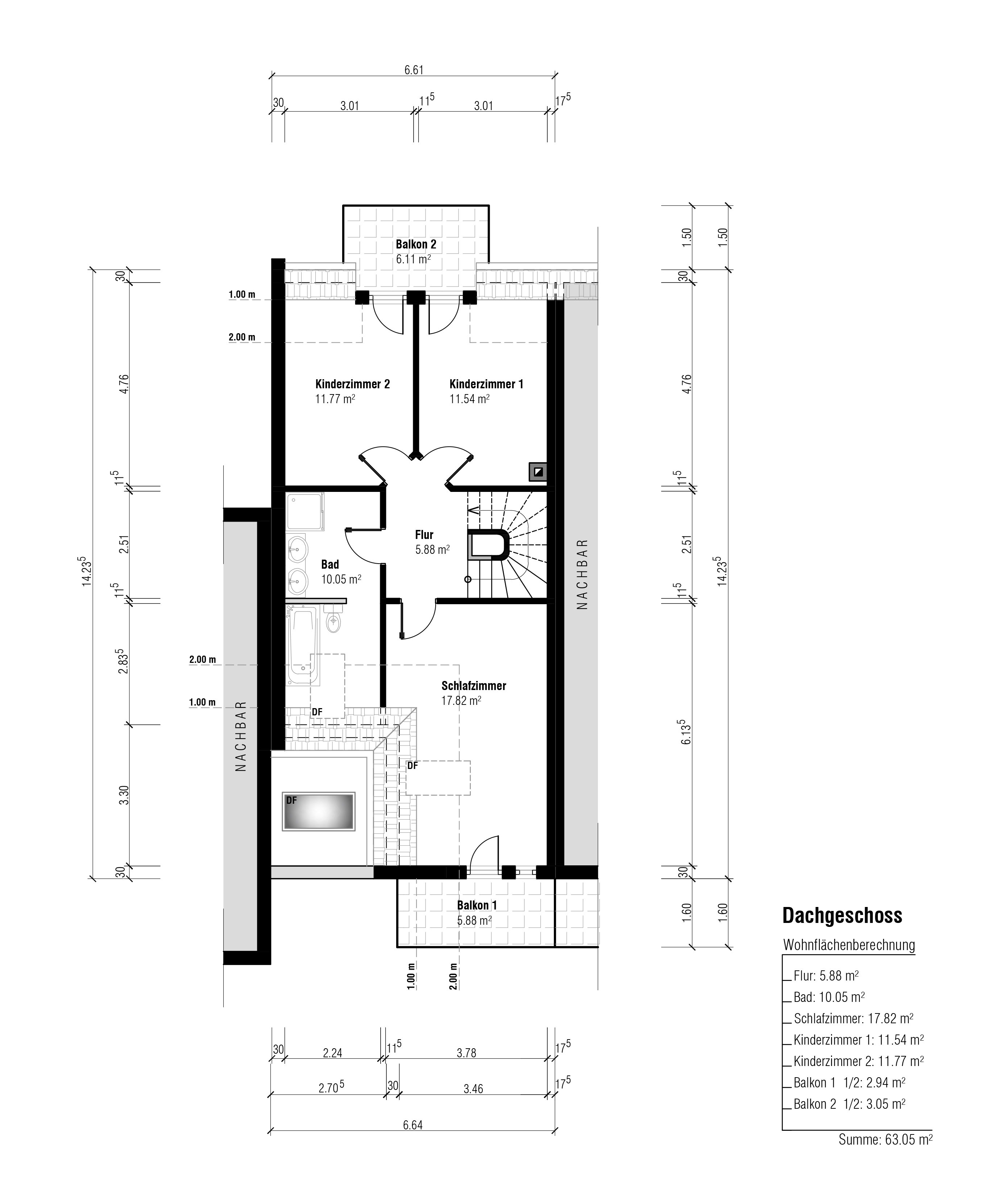
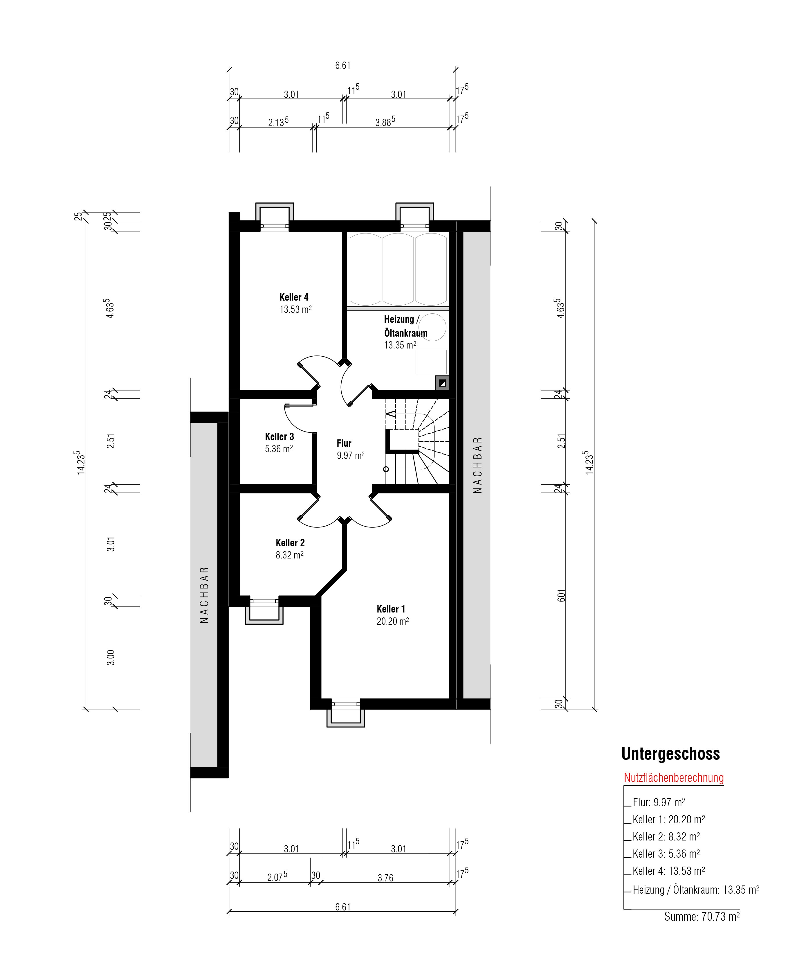
- Wohnfläche ca. 144 m²
- Grundstück ca. 265 m²
- Zimmer 5
- Etagenzahl 3
- Alt-/Neubau Neubau
- Denkmalschutzobjekt nein
- Heizungsart Öl-Heizung
- Einbauküche ja
- Gäste-WC ja
- Anzahl Balkone 1
- Stellplatztyp Aussenstellplatz
- Stellplatzanzahl 2
- Bezugstermin sofort frei
- Fahrzeit Hauptbahnhof 2 min
- Fahrzeit nächste Autobahnauffahrt 11 min
- Fahrzeit nächster Flughafen 17 min
- Bodenbelag Fliesen Laminat Parkett
- Ausstattung des Bades Badewanne Dusche Fenster
- Zustand Modernisiert
- Immobilien-ID 8426
- Provision 4,76 % inkl. MwSt.
Immobilie
Begehung https://youtube.com/watch?v=ux-FXGZbq5o&si=LLEyoR59Tzn-sjFe
Das Reihenmittelhaus wurde im Jahr 1994 als Neubau errichtet und befindet sich in einem modernisierten Zustand.
Es verfügt über eine Wohnfläche von 144 m² und erstreckt sich über drei Etagen.
Die Energieeffizienzklasse A sorgt für geringe Energiekosten, während zwei Parkplätze auf dem 265 m² großen Grundstück zur Verfügung stehen.
Das Satteldach und der Balkon verleihen dem Haus eine charmante Optik.
Die großzügigen Räumlichkeiten des Hauses bieten Platz für insgesamt fünf Zimmer, darunter vier Schlafzimmer und zwei Badezimmer.
Eine Öl-Heizung sorgt für wohlige Wärme, während eine Terrasse und ein Keller zusätzlichen Komfort bieten.
Der Balkon lädt zum Verweilen im Freien ein und ermöglicht einen herrlichen Blick auf die Umgebung.
Das Haus wurde im Jahr 2022 zuletzt modernisiert und befindet sich in einem gepflegten Zustand.
Die durchdachte Raumaufteilung und die hochwertige Ausstattung machen das Reihenmittelhaus zu einem attraktiven Zuhause für eine Familie.
Dank der zentralen Lage in einer ruhigen Wohngegend sind Einkaufsmöglichkeiten, Schulen und öffentliche Verkehrsmittel in unmittelbarer Nähe.
Lage
Das Reihenmittelhaus befindet sich in Adelsried, einem beschaulichen Stadtteil im Westen von Deutschland. Adelsried zeichnet sich durch seine ruhige und familienfreundliche Atmosphäre aus. In unmittelbarer Nähe der Immobilie befinden sich verschiedene Einkaufsmöglichkeiten, Schulen und Freizeiteinrichtungen. Auch die Natur ist nicht weit entfernt, so dass Spaziergänge und Radtouren im Grünen jederzeit möglich sind.
Die Stadt Adelsried selbst besticht durch ihre gute Verkehrsanbindung und die Nähe zu größeren Städten wie Augsburg. Die historische Altstadt beeindruckt mit ihren Fachwerkhäusern und gemütlichen Cafés. Auch kulturelle Veranstaltungen und diverse Freizeitangebote sind in Adelsried vorhanden. Die Stadt verbindet idyllisches Landleben mit urbanem Flair und bietet somit ein ideales Umfeld für Jung und Alt.
Die Region um Adelsried ist besonders reizvoll für Naturliebhaber und Ruhesuchende. Die malerische Landschaft lädt zu ausgedehnten Wanderungen und erholsamen Ausflügen ein. Auch sportliche Aktivitäten wie Golfen oder Reiten sind in der Umgebung möglich. Die gute Luft und die zahlreichen Freizeitmöglichkeiten machen die Gegend zu einem beliebten Wohnort für Menschen, die die Vorzüge des Landlebens zu schätzen wissen.
Ausstattung
Die Immobilie verfügt über ein hochwertig ausgestattetes Badezimmer mit Badewanne, Dusche und einem Fenster für ausreichend Tageslicht.
Eine Einbauküche der Firma Gagenau ist bereits vorhanden und auch Rollläden sind verfügbar, um für Sicht- und Sonnenschutz zu sorgen.
Die Bodenbeläge in der Immobilie bestehen aus Fliesen, Laminat und Parkett, was für eine moderne und ansprechende Optik sorgt.
Zudem ist eine Gästetoilette vorhanden, was den Komfort für Bewohner und Gäste erhöht.
Die Ausstattung insgesamt ist gehoben und bietet einen hohen Standard an Qualität.
Sonstiges
Ihre Anfrage wird in der Regel innerhalb von 48 Stunden bearbeitet. Bitte prüfen Sie auch gegebenenfalls Ihren Spamordner im E-Mail Postfach. Sollten wir Ihr Interesse geweckt haben und Sie haben Fragen oder möchten einen Besichtigungstermin vereinbaren, erreichen Sie uns unter den folgenden Kontaktdaten.
Wir freuen uns von Ihnen zu hören!
*************** Wichtig ***************
Für die Zusendung des Exposés / weitere Informationen zum Objekt sowie einen Terminwunsch bitte Ihre Daten im Kontaktformular angeben – kompletter Name – komplette Anschrift – E-Mail Adresse – Telefon – und /oder Mobilnummer.
*********** Danke für Ihr Verständnis ***********
Um eine zeitnahe Bearbeitung Ihrer Anfrage zu gewährleisten, bitten wir Sie den Erstkontakt ausschließlich über das Email-Kontaktformular zu gestalten.
Energieausweisangaben
- Enerigeausweistyp Verbrauchsausweis
- Energiekennwert 50 KWh(m²*a)
- Energieeffizienzklasse A
- Energieausweis erstellt am 16.10.2023
- Energieausweis gültig bis 26.02.2035
- Heizungsart Öl-Heizung
- Befeuerung / Energieträger Öl
Herzlichen Dank für Ihre Anfrage.
Wir werden diese so schnell wie möglich bearbeiten.




